ЭЛИЗИУМ 3K №446

Цена строительства от 3 900 000 ₽* * Стоимость не является окончательной
Заявка на консультацию
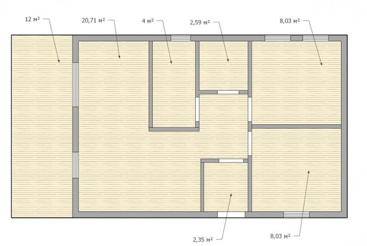
  • Общая площадь 46 м2
  • Длина 6 м
  • Ширина 11 м
  • Материал стен Каркас
  • Количество этажей 1
  • Подвал Нет
  • Мансарда без мансарды
  • Гараж Нет
  • Терраса Да
  • Проживание Круглогодичное
  • Количество комнат 3
  • Количество спален 2
  • Количество санузлов 1
  • Вид проекта дом
  • Застройщик Каркасмэн
  • Архитектурный стиль Барнхаус
  • Отделка фасада Металл
  • Крыша Двускатная
  • Можно купить домокомплект Нет
  • Модульный тип строения Нет
Планировки
Описание проекта

Комплектация «Стандарт» 3 900 000 ₽

1. Проект дома:

  • План экспликации
  • Раскладка фасада дома
  • Рабочая документация для постройки дома

2. Фундамент и подготовительные работы:

  • Первичный анализ грунта
  • Подготовка строительной площадки
  • Геодезическая разметка участка и расположения дома
  • Свайный железобетонный фундамент

3. Каркас дома, мембраны, утепление:

  • Каркас дома из строганной доски камерной сушки
  • Гидро-ветрозащитная паропроницаемая мембрана с проклейкой стыков на стенах
  • Пароизоляционная мембрана 150-200 мкрн с проклейкой стыков
  • Утепление 200мм пола, стен и потолка
  • Крыльцо у входной двери на свайном фундаменте

4. Кровля, фасад, окна, дверь:

  • Кровельный материал: профлист матовый графит
  • Внешняя отделка: профлист матовый графит и имитация бруса с покраской
  • Окна: 5-ти камерный профиль и 2-ух камерный стеклопакет с наружной отделкой металлом
  • Металлическая входная дверь с терморазрывом

5. Инженерные коммуникации

  • Электрические радиаторы
  • Сборка электрощита, монтаж вводного кабеля в дом
  • Септик 8,88 куб.м (ж/б, двухсекционный с переливом)
  • Разводка канализационных труб по дому и разводка водопровода в котельной

6. Особенности конструктива

  • Потолок скошенный 2.3-3.3 м.

Комплектация «Стандарт плюс» 5 330 000 ₽

1. Проект дома:

  • План экспликации
  • Раскладка фасада дома
  • Рабочая документация для постройки дома

2. Фундамент и подготовительные работы:

  • Первичный анализ грунта
  • Подготовка строительной площадки
  • Геодезическая разметка участка и расположения дома
  • Свайный железобетонный фундамент

3. Каркас дома, мембраны, утепление:

  • Каркас дома из строганной доски камерной сушки
  • Гидро-ветрозащитная паропроницаемая мембрана с проклейкой стыков на стенах
  • Пароизоляционная мембрана 150-200 мкрн с проклейкой стыков
  • Утепление 200мм пола, стен и потолка
  • Шумоизоляция 100мм в перегородки
  • Крыльцо у входной двери на свайном железобетонном фундаменте

4. Кровля, фасад, окна, дверь:

  • Кровельный материал: профлист матовый графит
  • Внешняя отделка: профлист матовый графит и имитация бруса с покраской
  • Окна: 5-ти камерный профиль и 2-ух камерный стеклопакет с наружной отделкой металлом
  • Металлическая входная дверь с терморазрывом

5. Инженерные коммуникации

  • Электрическая миникотельная станция
  • Водяной теплый пол с коллектором
  • Полусухая стяжка с армированием поверх плит ЭППС
  • Разводка черновой электрики, сборка электрощита, монтаж вводного кабеля в дом
  • Вытяжная вентиляция
  • Септик 8,88 куб.м (ж/б, двухсекционный с переливом)
  • Разводка сантехнических труб по дому (Водопровод и канализация с греющим кабелем)

6. Внутренняя отделка

  • Отделка стен и потолка гипсокартонными листами
  • Монтаж закладных под подвесную мебель
  • Потолок скошенный 2.3-3.3 м.

Вас может заинтересовать
Вас может заинтересовать

Выбор местоположения

Задать вопрос / написать нам

E-mail: domgis@mail.ru

Мы свяжемся с Вами в течение дня.

Тех. поддержка
Предмет обращения:
Тукущая страница

Мы свяжемся с Вами в течение дня.

Уведомление
Предмет обращения:
Тукущая страница
Обратный звонок
Обратный звонок
Выберите ваш город
Пожаловаться

Объявление опубликовано.
Изменения сохранены

Период публикации - бессрочный, при условии подтверждения актуальности каждые 50 дней. Уведомления будут отправляться на Вашу электронную почту.

Выберите причину снятия с публикации

Снятые с публикации объявления не участвуют в поиске и недоступны для подробного просмотра.

Для повторной публикации нажмите «Вернуть в публикацию»